Reference no: EM131287543
Part -1:
Question 1
The aluminum (7075 - T7351) panel has on edge crack of 1 inch and is subjected to constant amplitude cycle loading of σmax = 10 sec and. σmin = 0.

(a) use the walker growth vote equation and ΔN = 500 to determine the crack length after zoo cycles.
(b) Do the same thing but use the IHT growth rate equation or curve
Kmax = 10√(Πa) [1.12 -.23(a/4) + 10.6(a/4)2 - 21.x(a/4)3 + 30.3(a/4)4]
Question 2
For example +a, use the walker equation to determine the number of cycle required for the crack to become critical use aluminum 2024 T3
Question 3
How many cycles will it take to become critical?
Question 4
How many cycles will it take to reduce the residual strength by 20% ? by 40% ? use the Kmax vs d2a/dx curve given.
Question 5
Refer to the figure below to provide specific values of residual strength for the skin-stiffener structure for each of the following two cases:
a) Stiffener a is used
b) Stiffener b is used

Question 6
Set up a table to determine the crack growth of a panel subjected to the cyclic loading shown in the figure below.
Use the following growth data:
ΔN = 1,000 cycles
ao = 2.0 in
Use the Walker growth rate equation:
da/dN = 10-4 [zKmax/mT]P
z = (1 - R )q
where p = 3.7 , q = 0.6 , mT = 25
As an approximation, consider that the stress intensity of the cracked structure can be calculated at every stage of growth as
K1 = (1.2) σ√(Πa)

Question 7
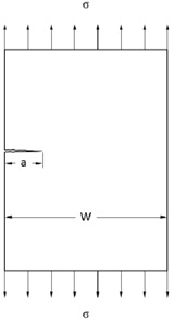
If the remote stress applied is σ = 20 (ksi) , determine the stress intensity factor for the edge cracked panel of the figure in the following cases:
A) No plastic zone adjustment
B) With plastic zone adjustment for both √Πa and β for plane stress
C) With plastic zone adjustment for both √Πa and β for plane strain
Note: assume the following values
σys = 63 (ksi)
W = 8(in)
a = 2(in)

|
What is passive income according to flynn
: Who is Pat Flynn? Why did he create SPI website? What is passive income according to Flynn?What are the main products or services on this website?
|
|
Determine significant barrier to the advancement of e-health
: Determine a significant barrier to the advancement of e-Health models in the delivery of patient care. Suggest how this barrier can be minimized. Provide a rationale for your determination.
|
|
The economics of crime
: Please write an essay that has at least 500 words on the topic of "The Economics of Crime". And, you have to use one resource from the movie and one resource from the article. The topic has to be related to economic not just about crimes. The foll..
|
|
Post an executive summary of your comprehensive project
: Post an executive summary of your Comprehensive Project in the body of a post in this discussion (please do not use attachments). An Executive Summary is a one
|
|
How many cycles will it take to become critical
: How many cycles will it take to become critical - How many cycles will it take to reduce the residual strength by 20% ? by 40% ? use the Kmax vs d2a/dx curve given.
|
|
Analyze the importance of production planning
: From the e-Activity, analyze the importance of production planning and scheduling within an organization. Suggest ways the schedules could have been created more efficient and effective.
|
|
Consumers always buy the lowest-priced shirts
: US consumers always buy the lowest-priced shirts and the US has a $3 tariff on shirt imports (we're looking at the US as the market/ as the importer). Then, the US and Mexico form a free Trade Area which does not include Thailand. For all the foll..
|
|
What are the limitations of operational definitions
: Pick a hypothetical construct. Describe external stimuli that influence the construct and external behaviors that are influenced by the construct.
|
|
What legal arguments could be raised by sudson
: What legal arguments could be raised by Sudson in support of the enforcement of the automatic renewal clause against Letisha? Explain. Does the Uniform Commercial Code Article 2A apply in this case? Explain.
|